자동회수장치
HOME > 사업분야 > 플랜트설비 > 자동회수장치공정도공정도
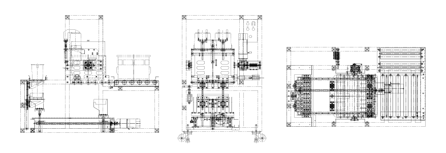
장치의 원리
자동정렬기에서 제품이 반출된 후 제품의 자동 공급 및 회수하는 설비로써 열처리가 완료된 제품의 중량으로 인한 작업자의 근골격계를 예방하고,
회수 시 제품의 파손을 방지하기 위한 설비이다.
적용분야
도금 공정
자동정렬기에서 제품이 반출된 후 제품의 자동 공급 및 회수하는 설비로써 열처리가 완료된 제품의 중량으로 인한 작업자의 근골격계를 예방하고,
회수 시 제품의 파손을 방지하기 위한 설비이다.
도금 공정


