메뉴건너뛰기
주메뉴로 바로가기
본문 바로가기
하단정보 바로가기
홈
로그인
사이트맵
인트라넷
English
주메뉴
회사소개
경영이념 및 비전
CEO인사말
회사개요 및 연혁
인증현황
윤리경영
찾아오시는 길
사업분야
사업영역
수질분야
대기분야
플랜트설비
아웃소싱
주요실적
사업실적
납품실적
연구개발
연구개발분야
개발내용
고객지원
공지 및 뉴스
견적문의
질문 및 답변
자료실
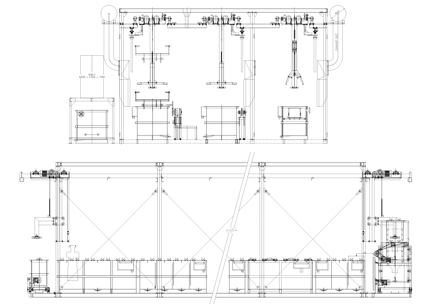
자동 도금조 라인
HOME > 사업분야 > 플랜트설비 > 자동 도금조 라인
공정도
공정도
장치의 원리
제품의 투입 및 회수까지 자동으로 전압, 전류를 조정하여 제품을 도금하는 설비로써 품질이 우수하다.
적용분야
도금 공정
시설 이미지