흡착에 의한 시설
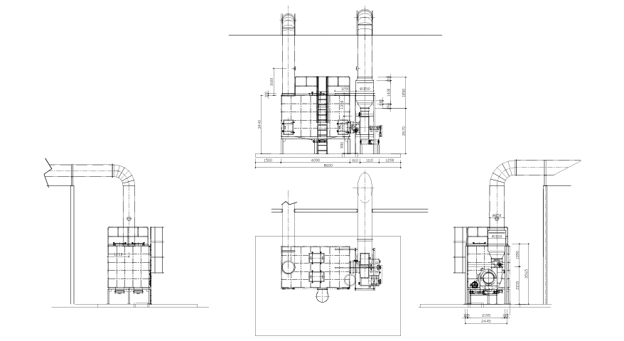
HOME > 사업분야 > 대기분야 > 흡착에 의한 시설Lay outLay out
장치의 원리
유기용제 함유 GAS가 활성탄에 접촉하여 부착되는 원리를 이용하여 오염물질을 제거하는 방법으로 활성탄의 기공율이 높고, 흡착능력이 우수한 점을 이용하여
유기용제 및 무기산, 무기성 알카리 가스를 흡착시킨다. 이때, 활성탄이 흡착물질이 유기용제인 경우 증기로써 가열시켜 활성탄으로부터 탈착시킨 후 콘덴서에서 응축시킨
액체상을 유기용제와 물과의 비중차이를 이용하여 분리시키고, 활성탄은 재활용시키는 방법도 있다. 이때, 낮은 농도에서 강려한 결합력을 가진 용질을 제거할 경우에는
폐기 시키는 방법이 타당하다.
장치의 특징
회수장치의 설치로 흡착제의 재이용이 가능하다.
적용분야
금속의 표면처리 및 화학제품, 가죽제품 및 목재가공, 기타 음식료품 및 비료




