순수제조장치
HOME > 사업분야 > 수질분야 > 순수제조장치계통도 및 Lay out계통도 및 Lay out
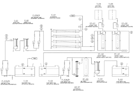
장치의 원리
RO여과막을 통과시켜 물 속의 SS, 이온 성분을 95%이상 제거시킨 여과수를 강산성 양이온 교환수지와 강염기성 음이온 교환수지를 각각의 독립된 탑내에 충진하여 통과시켜
순수를 제조하는 장치이다. 양이온 교환수지는 5~10% 염산(HCI)으로 재생하고, 음이온 교환수지는 5~10% 가성소다(NaOH)로 재생하며 이온교환능력이 저하된 수지는
재생시켜 주어야 한다.
적용분야
반도체 세척용수, 초순수제조의 후처리, 도금용수, 전착도장용수, 제약․사진 공업용수




