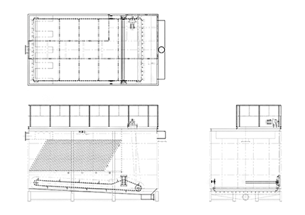
경사판 침전지
HOME > 사업분야 > 수질분야 > 경사판 침전지Lay outLay out
원리 및 특징
약품혼화, 응집 및 경사판 침전방식에 의해 고속의 침강분리가 가능한 물리적 또는 화학적 처리방법으로써 소요면적이 작고, 수질변동에 대처가 용이하며, 침전효율 우수하다.
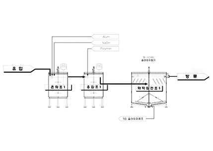
약품 혼화조에서 Alum과 NaOH를 주입하여 최초 응집시키고 응집조에서 폴리머를 주입하여 응집의 효과를 높혀 경사판에서 침전과정을 거쳐 안정적인 고액분리가 가능하다.
적용분야
하,폐수처리시설의 침전설비
경사판
FRP × 1.5T




